Home
About
Services
Projects
Architectural Design Building Plan / Model
Architectural Residential House
Mechanical Automated Sliding Gate Drawings
Technical Wall Mounted Light Unit Drawings
Concept / General Arrangement Drawings
Structural Design Drawings
Setting Out, Long and Cross Section Drawings
Pavement Design Layout and Construction Detail Drawings
Highway Design and Drainage Drawings
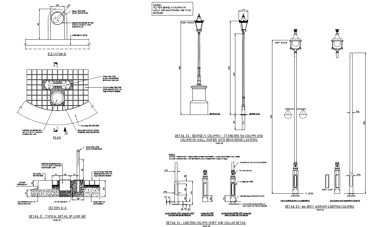
Construction Detail Drawings
Trial Excavation Drawings
Traffic Management Drawings
Testimonials
Contact
Projects
OUR PROJECTS – PROJECT AND DRAWING EXAMPLES
Construction Detail Drawings
web animation composer